בתחום התכנית נכלל שטח ציבורי פתוח נרחב הכולל פארק ארכיאולוגי (חרבת נאג') במקום נערכו סקרים של רשות העתיקות ובכוונת העירייה רמ"י ורשות העתיקות למתג את האזור לטובת העיר.
המתחם החדש גובל עם שכונת בן גוריון - שכונה חדשה המצויה כיום בשלבי אכלוס.השכונה החדשה שהופקדה היום תשלים כניסה חדשה לשדרות מכיוון צפון והיא באה בהמשך לרחוב בגין העתיד לחצות את העיר מצפון לדרום.
התכנית גם כוללת שטחי ציבור עבור חינוך, תרבות ספורט פנאי דת וכו' בשטח של כ- 57 ד' לתושבי השכונה העתידית. השכונה החדשה מקושרת היטב למרקם הקיים העירוני ע"י דרכים, שבילים ושבילי אופניים.
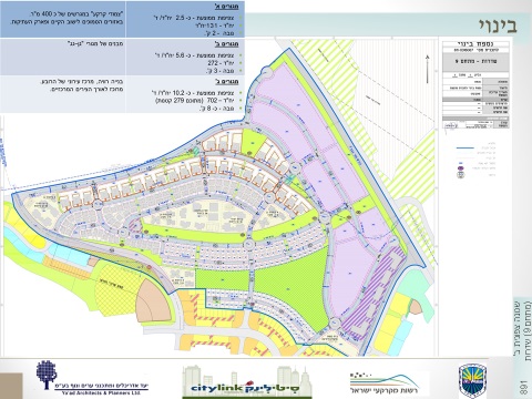
התכנית החדשה שהופקדה בידי רמ"י ועיריית שדרות משתרעת על שטח של כ- 660 ד' והיא כוללת: 1,112 יח"ד , על פי החלוקה הבאה:
134 יח"ד בבניה צמודת קרקע. על מגרשים של כ- 400 מ"ר ליחידה .
272 יח"ד בבניה סמי רוויה עד 3 קומות. מגורים ב' בשיטת גג-גן מגרשים של עד 700 מ"ר כ- 5 יח"ד דיור למגרש.
702 יח"ד בבניה רוויה עד 8 קומות.
הבניה הרוויה נסמכת על הצירים הראשיים של השכונה בהתאם לתכנית המתאר החדשה המתגבשת לעיר.
בהתאם להחלטת ממשלה בדבר פיתוח אסטרטגי ביישובי עוטף עזה והעיר שדרות, המתחם החדש כולל גם אזור תעסוקה ומשרדים בשטח של כ- 120 ד' הכולל 200,000 מ"ר בניה +10,000 מ"ר מסחר.
אזור התעסוקה יוקם בכניסה הצפונית החדשה המתוכננת לעיר מכיוון כביש 333 העתידי (כביש המחבר את צומת איבים ל- צומת קיבוץ ארז).
התכנית כוללת נספחים רבים כגון תנועה, מים, ביוב, חשמל ונוף. רשות מקרקעי ישראל ועיריית שדרות כבר נערכות לפיתוח המתחם לעת אישור התכנית כולל שטחי התעסוקה.
התכנית נערכה ע"י חב' סיטילינק ע"י יעד אדריכלים המתכנן הנו נעמן בלקינד.





